Mmmm..... cookies...

Afdeling

Liselund
169-0

Attrupgårdvej 13, 27
Attrupgårdvej 1, 15. Etage/dør: 1. th., st. th.
Attrupgårdvej 5, 19. Etage/dør: 1. tv., st. tv.

Boliginfo

Adresser

Attrupgårdvej 1 - 27,
9310 Vodskov

Boligtype

ic_arrow_diagonal_black_24px

Antal boliger

10

Energimærke

D

Andet

Altan: Ja
Elevator: Nej
Husdyr tilladt: Ja

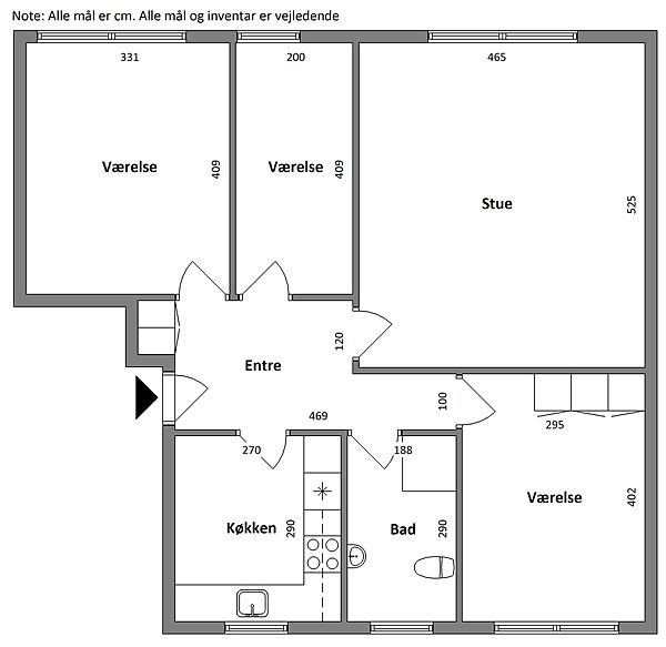
Værelser

4

Størrelser

99-112 m2

Husleje

7165-8106 kr.

Indskud

10530-11670 kr

Ventetid

6 mdr. - 1 år

Der er fortrinsret ved skilsmisse, dog ikke i samme afd.
Det er tilladt at holde husdyr i bebyggelsen.

Skriv dig op her!